Betsy Mills, GB190713009A

Improvements in Window Sashes.

Image credit: Mills, B. (1907)

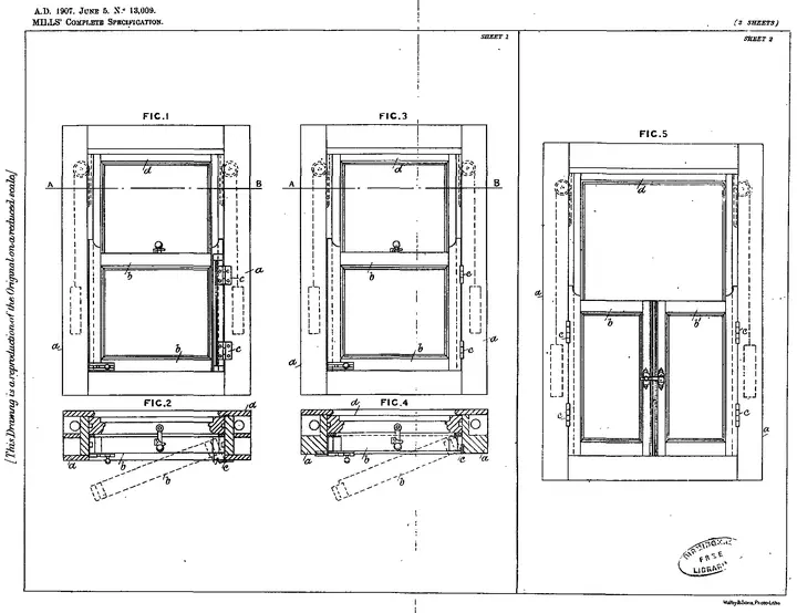
On October 17, 1907, Betsy Mills of Rochdale in the County of Lancaster invented an improved window sash in which the lower sash was hinged to open inward instead of sliding. This allowed the outside of the window to be cleaned safely from inside the house, while the upper sash continued to slide in the usual way.

Date of Application: 5 June 1907

Date of Issuance: 17 October 1907

For more information, please refer to the following webpage:

Francesca Chiaradia
Francesca Chiaradia
PhD Candidate in Economics

My research interests include innovation, law, and information economics.